1627 Decatur Avenue
Holly Hill, FL 32117

Listed at $348,000

Details

  • MLS# V4946307
  • Residential - Single Family
  • Status Active
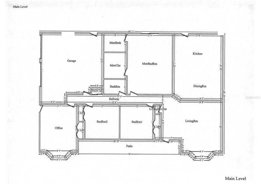
  • 3 Bedrooms
  • 2 full Bathrooms
  • 2,315 Square Feet
  • 0.340 acres
  • Built in 1987
  • Local Schools

Description

Investor Opportunity or the Perfect Canvas for Your Dream Home! Nestled on a spacious .34-acre lot towards the end of a quiet dead-end street, this 3-bedroom, 2-bath home with a bonus room offers privacy, flexibility, and endless potential. A side-entry two-car garage and functional floor plan make this property ideal for renovation, investment, or customization. Inside, the spacious kitchen features a center island and is connected to the dining room, creating an open and functional layout ideal for everyday living and entertaining. The home includes recent updates, such as a new A/C unit installed in 2023 and a new oven/stove added in 2025,...read more offering peace of mind while you personalize the remaining spaces. The primary suite boasts a walk-in closet and sliding glass doors that open directly to the back porch-perfect for morning coffee or relaxing evenings. The bonus room provides versatile space that can be used as a home office, playroom, fitness area, or guest retreat. Step outside to an expansive backyard complete with a storage shed and an outdoor fireplace, creating a cozy setting for gatherings and entertaining. While the home does need updates, its full of character and opportunity-making it an excellent choice for investors, flippers, or buyers ready to add their personal touch. Conveniently located just minutes from the beach, shopping, dining, and everyday amenities, with easy access to major highways and the Daytona International Speedway, this home offers the perfect balance of coastal living, convenience, and entertainment. Dont miss the opportunity to transform this well-located property into something truly special!

Features

  • Dryer
  • Gas Water Heater
  • Microwave
  • Range
  • Refrigerator
  • Central Air
  • Carpet
  • Tile
  • Natural Gas
  • 1.0 Story
  • $1,661 Taxes
  • Public
  • Built in 1987
View All Features

Contact the Agent

Contact the Listing Agent
Disclaimer: All information deemed reliable but not guaranteed. All properties are subject to prior sale, change or withdrawal. Neither listing broker(s) or information provider(s) shall be responsible for any typographical errors, misinformation, misprints and shall be held totally harmless. Listing(s) information is provided for consumers personal, non-commercial use and may not be used for any purpose other than to identify prospective properties consumers may be interested in purchasing. Information on this site was last updated 03/08/2026. The listing information on this page last changed on 03/08/2026. The data relating to real estate for sale on this website comes in part from the Internet Data Exchange program of Delta Media Group MLS (last updated Sun 03/08/2026 12:09:49 AM EST) or Miami MLS (last updated Sat 03/07/2026 11:58:39 PM EST) or Stellar MLS (last updated Sat 03/07/2026 11:58:56 PM EST) or Daytona MLS (last updated Sat 03/07/2026 11:36:56 PM EST) or Tallahassee MLS (last updated Sat 03/07/2026 10:48:02 PM EST) or Northeast Florida MLS (last updated Sat 03/07/2026 11:58:46 PM EST) or My State MLS (last updated Sat 03/07/2026 11:30:21 PM EST) or Florida Keys MLS (last updated Sat 03/07/2026 8:29:20 PM EST). Real estate listings held by brokerage firms other than Adams Cameron & Co. REALTORS may be marked with the Internet Data Exchange logo and detailed information about those properties will include the name of the listing broker(s) when required by the MLS. All rights reserved.

mls logo
Listing data and photos distributed by MLSGRID
Member Participants (and their affiliated licensees, if applicable) shall indicate on their websites that IDX information is provided exclusively for consumers’ personal non-commercial use, that it may not be used for any purpose other than to identify prospective properties consumers may be interested in purchasing, that the data is deemed reliable but is not guaranteed by MLS GRID, and that the use of the MLS GRID Data may be subject to an end user license agreement prescribed by the Member Participant’s applicable MLS if any and as amended from time to time. MLS GRID may, at its discretion, require use of other disclaimers as necessary to protect Member Participant, and/or their MLS from liability.
Based on information submitted to the MLS GRID. All data is obtained from various sources and may not have been verified by broker or MLS GRID. Supplied Open House Information is subject to change without notice. All information should be independently reviewed and verified for accuracy. Properties may or may not be listed by the office/agent presenting the information.



Privacy Policy / DMCA Notice / ADA Accessibility

Property Image 1
Property Image 2
Property Image 3
Property Image 4
Property Image 5
Property Image 6
Property Image 7
Property Image 8
Property Image 9
Property Image 10
Property Image 11
Property Image 12
Property Image 13
Property Image 14
Property Image 15
Property Image 16
Property Image 17
Property Image 18
Property Image 19
Property Image 20
Property Image 21
Property Image 22
Property Image 23
Property Image 24
Property Image 25
Property Image 26
Property Image 27
Property Image 28
Property Image 29
Property Image 30
Property Image 31
Property Image 32
Property Image 33
Property Image 34
Property Image 35
Property Image 36
Property Image 37
Property Image 38
Property Image 39
Property Image 40
Property Image 41
Property Image 42
Property Image 43

All Property Features

  • Property Type: Residential - Single Family
  • Additional Rooms: Bonus Room
  • Appliances: Dryer, Gas Water Heater, Microwave, Range, Refrigerator
  • Cooling: Central Air
  • Days on Site: 82
  • Directions: Head south on Nova Rd and turn left onto Flomich St, turn left on Decatur Ave, home is on the right.
  • Exterior: Block, Concrete, Stucco
  • Exterior Features: Sliding Doors
  • Fenced: Yes
  • Fencing: Fenced, Wood
  • Flood Zone Code: x
  • Flooring: Carpet, Tile
  • Foundation: Slab
  • Garage: 2 car attached
  • Heating: Natural Gas
  • Home Warranty Y/N: No
  • Interior Features: Ceiling Fans(s), Primary Bedroom Main Floor, Thermostat, Walk-In Closet(s)
  • Listing Terms: Cash
  • Lot Description: Street Dead-End
  • Lot Dimensions: 0.34
  • Lot Size: 0.34 Acres
  • Other Equipment: Irrigation Equipment
  • Other Structures: Shed(s)
  • Ownership: Fee Simple
  • Parking: Circular Driveway, Garage Door Opener, Garage Faces Side
  • Parking Notes: Circular Driveway, Garage Door Opener, Garage Faces
  • Patio/Porch: Patio, Rear Porch
  • Pets Allowed: Yes
  • Property Attached Y/N: No
  • Property Sub-Type: Single Family Residence
  • Roof Type: Shingle
  • Sewer: Public Sewer
  • Showing Instructions: 24 Hour Notice, Appointment Only, Call Listing Agent, Listing Agent Must Accompany, See Remarks
  • Special Sale Provisions: None
  • Stories: 1.0
  • Taxes: $1,661
  • Utilities: Electricity Connected, Natural Gas Connected, Sewer Connected, Water Connected
  • Water: Public
  • Water Access Y/N: No
  • Year Built: 1987
  • Zoning: SFR