209 Standish Drive
Ormond Beach, FL 32176

Listed at $499,000

Details

  • MLS# V4946749
  • Residential - Single Family
  • Status Active
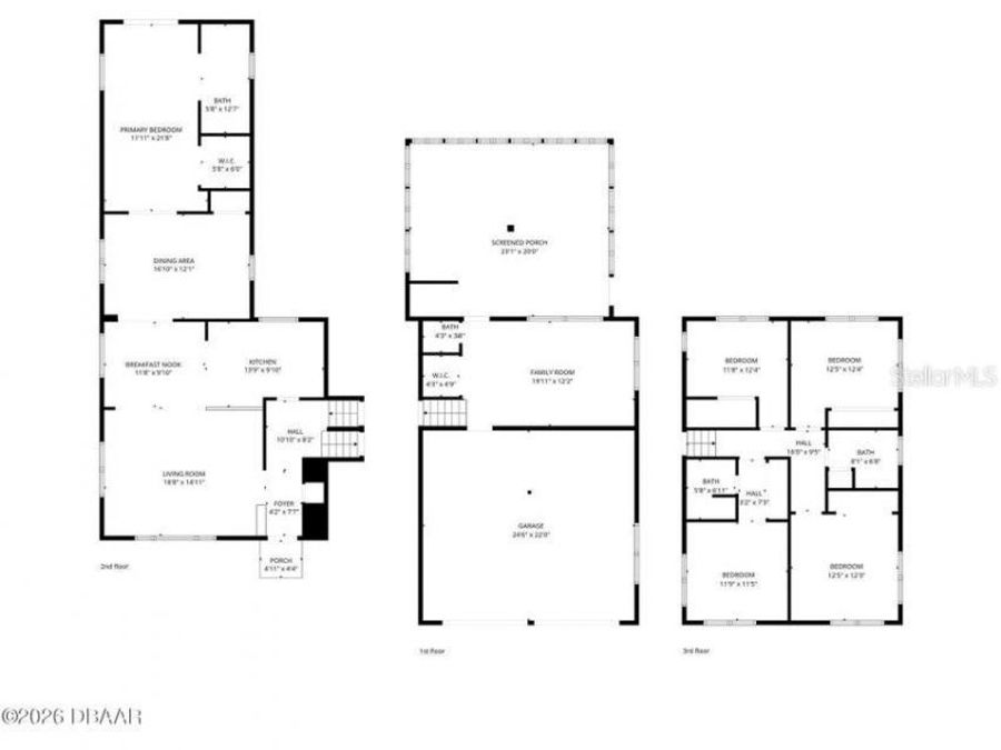
  • 5 Bedrooms
  • 3 full 1 partial Bathrooms
  • 2,990 Square Feet
  • 0.290 acres
  • Built in 1963
  • Local Schools

Description

One or more photo(s) has been virtually staged. It's The Salt Life at this exceptional split-level home just one half block from the beach. A rare opportunity to enjoy flexible space and or multi- generational living. Offering 5 beds, 3.5 baths. A thoughtfully designed primary suite addition (2018) features a private entrance a luxurious bath with a curb less walk-in shower, and convenient ramp access. Four additional bedrooms are located on the next level, including one en-suite bedroom. An inviting kitchen is appointed with granite countertops and stainless-steel appliances. Behind the two-car garage, versatile bonus rooms offer endless...read more possibilities for a game room, hobby space, home gym, or studio. Hardwood and tile floors run throughout the home. A fenced rear yard with a separate storage shed, are an added bonus. Notable Updates Include: Main A/C: 2015, Mini-split A/C systems: 2019, Hot water heater: 2010, Roof is approx 12 years. All measurements are approximate. Some images are digitally altered.

Features

  • Dishwasher
  • Microwave
  • Range
  • Refrigerator
  • Central Air, Wall/Window Unit(s)
  • Tile
  • Wood
  • Electric
  • $7,477 Taxes
  • Public
  • Built in 1963
View All Features

Contact the Agent

Dulce Monahan

Dulce Monahan

Ormond Mainland Office
Contact the Listing Agent
Disclaimer: All information deemed reliable but not guaranteed. All properties are subject to prior sale, change or withdrawal. Neither listing broker(s) or information provider(s) shall be responsible for any typographical errors, misinformation, misprints and shall be held totally harmless. Listing(s) information is provided for consumers personal, non-commercial use and may not be used for any purpose other than to identify prospective properties consumers may be interested in purchasing. Information on this site was last updated 03/08/2026. The listing information on this page last changed on 03/08/2026. The data relating to real estate for sale on this website comes in part from the Internet Data Exchange program of Delta Media Group MLS (last updated Sun 03/08/2026 12:09:49 AM EST) or Miami MLS (last updated Sat 03/07/2026 11:58:39 PM EST) or Stellar MLS (last updated Sat 03/07/2026 11:58:56 PM EST) or Daytona MLS (last updated Sat 03/07/2026 11:36:56 PM EST) or Tallahassee MLS (last updated Sat 03/07/2026 10:48:02 PM EST) or Northeast Florida MLS (last updated Sat 03/07/2026 11:58:46 PM EST) or My State MLS (last updated Sat 03/07/2026 11:30:21 PM EST) or Florida Keys MLS (last updated Sat 03/07/2026 8:29:20 PM EST). Real estate listings held by brokerage firms other than Adams Cameron & Co. REALTORS may be marked with the Internet Data Exchange logo and detailed information about those properties will include the name of the listing broker(s) when required by the MLS. All rights reserved.

mls logo
Listing data and photos distributed by MLSGRID
Member Participants (and their affiliated licensees, if applicable) shall indicate on their websites that IDX information is provided exclusively for consumers’ personal non-commercial use, that it may not be used for any purpose other than to identify prospective properties consumers may be interested in purchasing, that the data is deemed reliable but is not guaranteed by MLS GRID, and that the use of the MLS GRID Data may be subject to an end user license agreement prescribed by the Member Participant’s applicable MLS if any and as amended from time to time. MLS GRID may, at its discretion, require use of other disclaimers as necessary to protect Member Participant, and/or their MLS from liability.
Based on information submitted to the MLS GRID. All data is obtained from various sources and may not have been verified by broker or MLS GRID. Supplied Open House Information is subject to change without notice. All information should be independently reviewed and verified for accuracy. Properties may or may not be listed by the office/agent presenting the information.



Privacy Policy / DMCA Notice / ADA Accessibility

Property Image 1
Property Image 2
Property Image 3
Property Image 4
Property Image 5
Property Image 6
Property Image 7
Property Image 8
Property Image 9
Property Image 10
Property Image 11
Property Image 12
Property Image 13
Property Image 14
Property Image 15
Property Image 16
Property Image 17
Property Image 18
Property Image 19
Property Image 20
Property Image 21
Property Image 22
Property Image 23
Property Image 24
Property Image 25
Property Image 26
Property Image 27
Property Image 28
Property Image 29
Property Image 30
Property Image 31
Property Image 32
Property Image 33
Property Image 34
Property Image 35
Property Image 36
Property Image 37
Property Image 38
Property Image 39
Property Image 40
Property Image 41
Property Image 42

All Property Features

  • Property Type: Residential - Single Family
  • Accessibility Features: Accessible Entrance, Accessible Full Bath
  • Appliances: Dishwasher, Microwave, Range, Refrigerator
  • Cooling: Central Air, Wall/Window Unit(s)
  • Days on Site: 52
  • Directions: From E Granada Blvd and Ocean Shore go North on Ocean Shore to Standish
  • Exterior: Block, Concrete
  • Exterior Features: Other
  • Flood Zone Code: X
  • Flooring: Tile, Wood
  • Foundation: Block
  • Garage: 2 car attached
  • Heating: Electric
  • Home Warranty Y/N: No
  • Interior Features: Ceiling Fans(s), Other
  • Listing Terms: Cash, Conventional
  • Lot Dimensions: 0.29
  • Lot Size: 0.29 Acres
  • Other Structures: Shed(s)
  • Ownership: Fee Simple
  • Parking: Garage Door Opener
  • Parking Notes: Garage Door Opener
  • Patio/Porch: Front Porch
  • Pets Allowed: Cats OK, Dogs OK
  • Property Attached Y/N: No
  • Property Sub-Type: Single Family Residence
  • Roof Type: Shingle
  • Sewer: Public Sewer
  • Showing Instructions: Combination Lock Box, See Remarks, ShowingTime
  • Special Sale Provisions: None
  • Taxes: $7,477
  • Utilities: Cable Available, Electricity Available, Sewer Available, Water Available
  • Water: Public
  • Water Access Y/N: No
  • Windows: Storm Window(s)
  • Year Built: 1963
  • Zoning: RESI