4084 Halifax Drive
Port Orange, FL 32127

Listed at $799,000

Details

  • MLS# 1211510
  • Land - Lot/Land
  • Status Active
  • 0 Bedrooms
  • Bathrooms
  • 0 Square Feet
  • 0.660 acres
  • Built in 0
  • Local Schools

Description

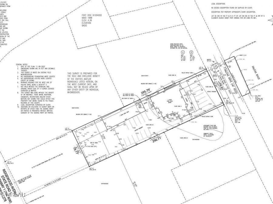
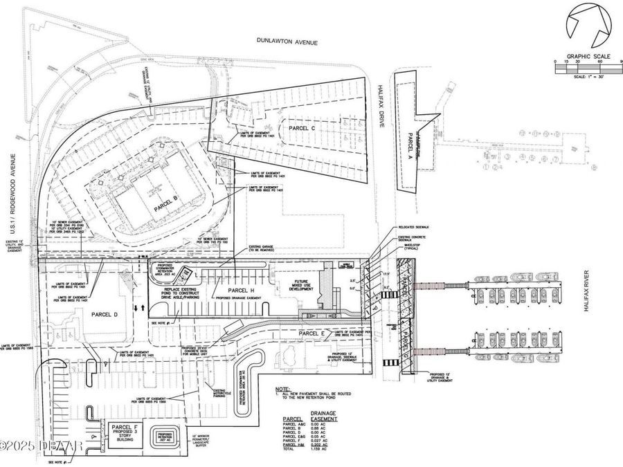
0.66+/- Acre Riverfront Development with Numerous Possibilities on the Halifax River.Prime riverfront site within the Catfish Commons Planned Commercial Development, offering Mixed Use Center (MXU) zoning and flexible development potential:Residential: Up to 8 long or short-term rental unitsMarina: Zoned for 12 boat slips for motorized or non-motorized vessels with the City of Port OrangeEvent Venue: Ideal for waterfront gatheringsMobile Commercial: Flexible use options for pop-up or mobile businessesAdditional HighlightsMax building height: 45 feetFlexible setbacks and zero-lot-line development allowedDock access permitted beyond 100 feet...read more (subject to approvals)6 dedicated marina parking spaces on siteCity development review and permit fees waived for 5 years (Excludes impact/stormwater fees)Cross access easements in placeStrategic Location Unlock the potential of this rare riverfront parcel - perfect for mixed-use, waterfront dining, boutique lodging, or marina-based operations.0.66+/- Acre Riverfront Site in Catfish Commons with MXU zoningFlexible Use: Up to 8 rental units, 12 marina slips, or event/mobile business potentialGenerous Build Options: 45 height, flexible setbacks, zero-lot-line allowedCity permit/review fees waived for 5 years (excludes impact/stormwater fees)220 shared parking spaces across the PCD

Features

  • $9,736 Taxes
View All Features

Contact the Agent

Contact the Listing Agent
Disclaimer: All information deemed reliable but not guaranteed. All properties are subject to prior sale, change or withdrawal. Neither listing broker(s) or information provider(s) shall be responsible for any typographical errors, misinformation, misprints and shall be held totally harmless. Listing(s) information is provided for consumers personal, non-commercial use and may not be used for any purpose other than to identify prospective properties consumers may be interested in purchasing. Information on this site was last updated 03/08/2026. The listing information on this page last changed on 03/08/2026. The data relating to real estate for sale on this website comes in part from the Internet Data Exchange program of Delta Media Group MLS (last updated Sun 03/08/2026 12:09:49 AM EST) or Miami MLS (last updated Sat 03/07/2026 11:58:39 PM EST) or Stellar MLS (last updated Sat 03/07/2026 11:58:56 PM EST) or Daytona MLS (last updated Sat 03/07/2026 11:36:56 PM EST) or Tallahassee MLS (last updated Sat 03/07/2026 10:48:02 PM EST) or Northeast Florida MLS (last updated Sat 03/07/2026 11:58:46 PM EST) or My State MLS (last updated Sat 03/07/2026 11:30:21 PM EST) or Florida Keys MLS (last updated Sat 03/07/2026 8:29:20 PM EST). Real estate listings held by brokerage firms other than Adams Cameron & Co. REALTORS may be marked with the Internet Data Exchange logo and detailed information about those properties will include the name of the listing broker(s) when required by the MLS. All rights reserved.
Privacy Policy / DMCA Notice / ADA Accessibility

Property Image 1
Property Image 2
Property Image 3
Property Image 4
Property Image 5
Property Image 6
Property Image 7
Property Image 8
Property Image 9

All Property Features

  • Property Type: Land - Lot/Land
  • Days on Site: 340
  • Directions: Located just south of Dunlawton bridge and across the street from the Halifax River.
  • Listing Terms: Other
  • Lot Description: Other
  • Lot Dimensions: 85x340
  • Lot Size: 0.66 Acres
  • Parcel #: 6341-04-05-0010
  • Property Attached Y/N: No
  • Property Sub-Type: Unimproved Land
  • Taxes: $9,736
  • Utilities: Other