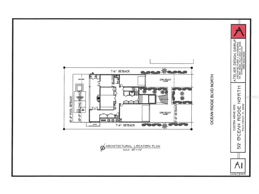
52 Ocean Ridge Boulevard N
Palm Coast, FL 32137

Listed at $5,495,000

Details

  • MLS# FC309622
  • Residential - Single Family
  • Status Active
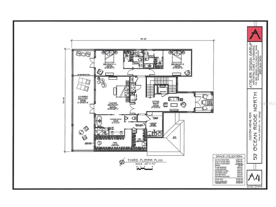
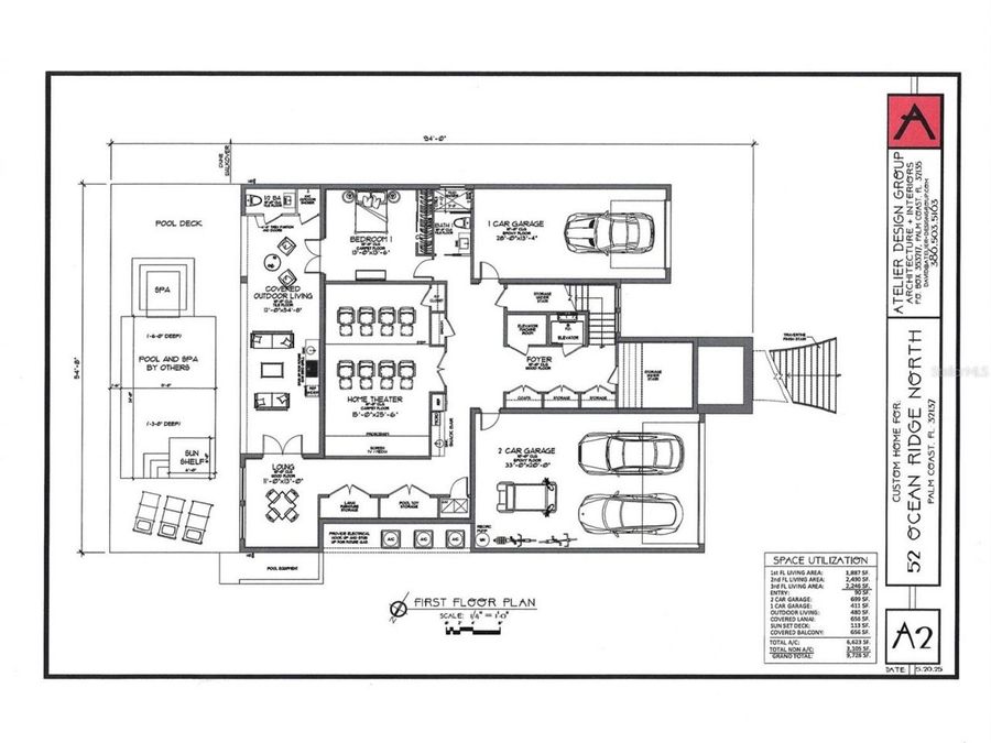
  • 6 Bedrooms
  • 6 full 2 partial Bathrooms
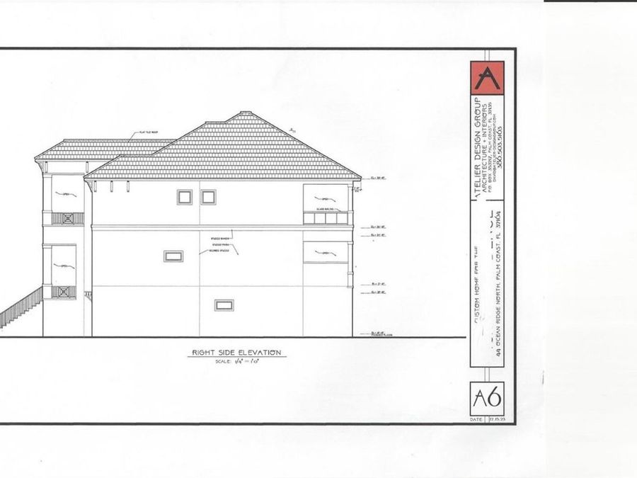
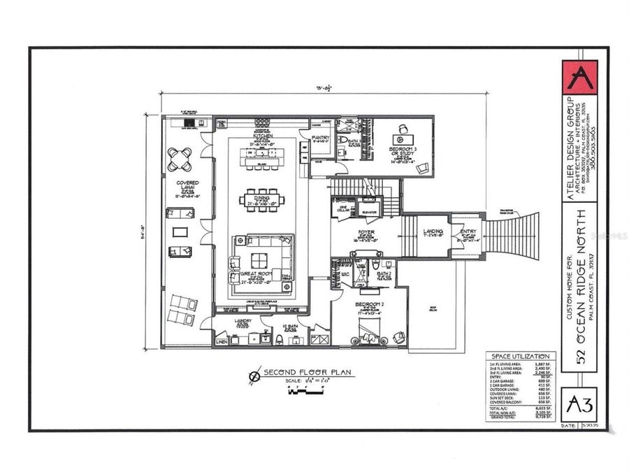
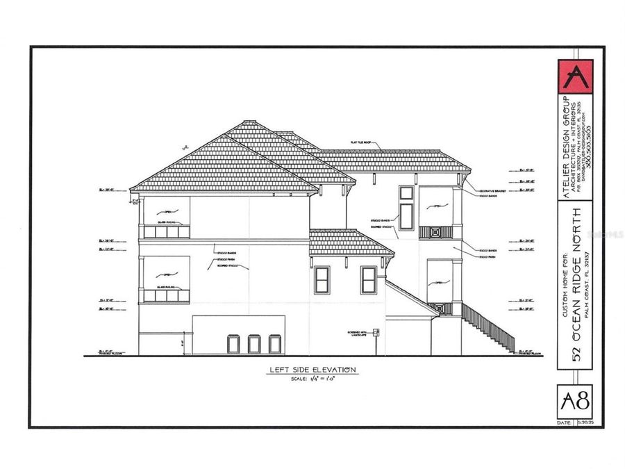
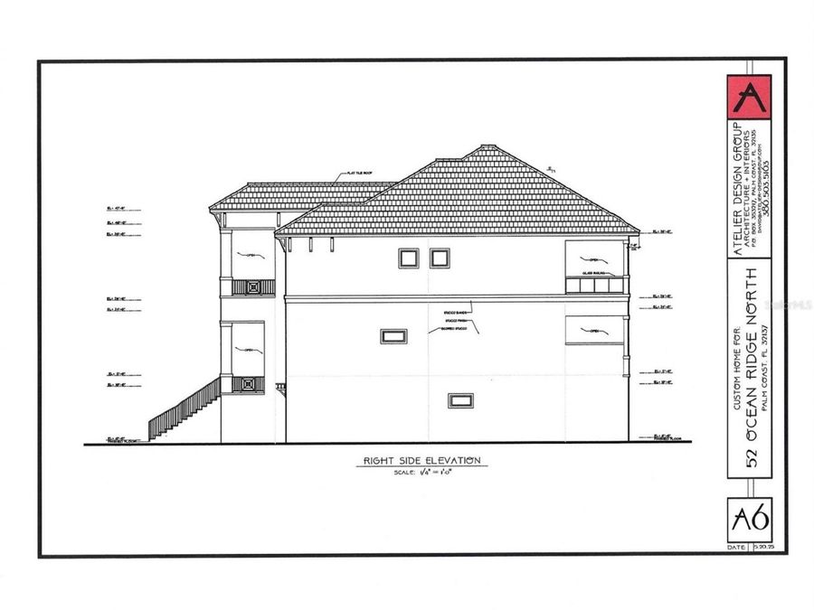
  • 6,623 Square Feet
  • 0.230 acres
  • Built in 2025
  • Local Schools

Description

Under Construction. Still time to make it your own! Unveiling a breathtaking OCEANFRONT SANCTUARY nestled within the elite Ocean Hammock gated community. This remarkable residence offers spectacular VIEWS OF THE ATLANTIC OCEAN and pristine beaches, seamlessly merging luxury with tranquility. As an added bonus, there are no buildable lots on the west side of Ocean Ridge Blvd. at this location, meaning you will never have neighbor on the opposite side of the street. AMAZING UNOBSTRUCTED SUNSETS AS WELL! your new dream home will enjoy lake views from the upper floors on the front of the house, in addition to jaw-dropping OCEAN VIEWS to the east....read more Experience serene mornings with breathtaking Atlantic sunrises and unwind with picturesque sunsets in this uniquely coastal community.Encompassing over 6500 square feet of artfully designed living space, the home is a testament to exceptional craftsmanship and refined architectural elegance. The main living space is expertly crafted to showcase panoramic ocean vistas, providing a peaceful and picturesque backdrop for relaxation and entertaining. An elevator ensures effortless access to all levels, while a semi-private beach walkover allows for direct beach enjoyment. The outdoor retreat features a lavish pool, complete with summer kitchen. A full bathroom accessible from the pool area enhances the outdoor living experience. The dedicated home theater pre`wired for 15 speakers with sound isolation. Additional practical features include 2 laundry rooms, one is located on the 3rd floor by all the bedrooms,the other laundry room is on 2nd floor for pool and beach towels, and a full dog washing station, further enhancing the homes functionality. Every detail of this exquisite oceanfront sanctuary has been thoughtfully crafted to provide an unparalleled living experience. Whether basking in the private pool/ hot tub, entertaining in the outdoor space this home is exquisite! There is still time to make it your own in terms of the interior appointments such as flooring, cabinets and appliances.

Features

  • Built-In Oven
  • Convection Oven
  • Cooktop
  • Dishwasher
  • Disposal
  • Electric Water Heater
  • Ice Maker
  • Microwave
  • Refrigerator
  • Central Air
  • Ceramic Tile
  • Hardwood
  • Wood
  • Central, Electric, Heat Pump
  • 3.0 Stories
  • $10,963 Taxes
  • Public
  • Built in 2025
View All Features

Contact the Agent

Contact the Listing Agent
Disclaimer: All information deemed reliable but not guaranteed. All properties are subject to prior sale, change or withdrawal. Neither listing broker(s) or information provider(s) shall be responsible for any typographical errors, misinformation, misprints and shall be held totally harmless. Listing(s) information is provided for consumers personal, non-commercial use and may not be used for any purpose other than to identify prospective properties consumers may be interested in purchasing. Information on this site was last updated 04/24/2026. The listing information on this page last changed on 04/24/2026. The data relating to real estate for sale on this website comes in part from the Internet Data Exchange program of Delta Media Group MLS (last updated Fri 04/24/2026 12:06:52 AM EST) or Miami MLS (last updated Thu 04/23/2026 11:58:49 PM EST) or Stellar MLS (last updated Thu 04/23/2026 11:59:17 PM EST) or Daytona MLS (last updated Thu 04/23/2026 11:36:52 PM EST) or Tallahassee MLS (last updated Thu 04/23/2026 10:48:50 PM EST) or Northeast Florida MLS (last updated Thu 04/23/2026 11:59:00 PM EST) or My State MLS (last updated Thu 04/23/2026 11:30:14 PM EST) or Florida Keys MLS (last updated Thu 04/23/2026 8:31:17 PM EST). Real estate listings held by brokerage firms other than Adams Cameron & Co. REALTORS may be marked with the Internet Data Exchange logo and detailed information about those properties will include the name of the listing broker(s) when required by the MLS. All rights reserved.

mls logo
Listing data and photos distributed by MLSGRID
Member Participants (and their affiliated licensees, if applicable) shall indicate on their websites that IDX information is provided exclusively for consumers’ personal non-commercial use, that it may not be used for any purpose other than to identify prospective properties consumers may be interested in purchasing, that the data is deemed reliable but is not guaranteed by MLS GRID, and that the use of the MLS GRID Data may be subject to an end user license agreement prescribed by the Member Participant’s applicable MLS if any and as amended from time to time. MLS GRID may, at its discretion, require use of other disclaimers as necessary to protect Member Participant, and/or their MLS from liability.
Based on information submitted to the MLS GRID. All data is obtained from various sources and may not have been verified by broker or MLS GRID. Supplied Open House Information is subject to change without notice. All information should be independently reviewed and verified for accuracy. Properties may or may not be listed by the office/agent presenting the information.



Privacy Policy / DMCA Notice / ADA Accessibility

Property Image 1
Property Image 2
Property Image 3
Property Image 4
Property Image 5
Property Image 6
Property Image 7
Property Image 8
Property Image 9
Property Image 10
Property Image 11
Property Image 12
Property Image 13
Property Image 14
Property Image 15
Property Image 16
Property Image 17
Property Image 18
Property Image 19
Property Image 20
Property Image 21
Property Image 22
Property Image 23
Property Image 24
Property Image 25
Property Image 26
Property Image 27
Property Image 28
Property Image 29
Property Image 30
Property Image 31
Property Image 32
Property Image 33
Property Image 34
Property Image 35

All Property Features

  • Property Type: Residential - Single Family
  • Additional Rooms: Bonus Room, Breakfast Room Separate, Family Room, Formal Dining Room Separate, Formal Living Room Separate, Great Room, Inside Utility, Media Room, Storage Rooms
  • Appliances: Built-In Oven, Convection Oven, Cooktop, Dishwasher, Disposal, Electric Water Heater, Ice Maker, Microwave, Refrigerator
  • Body of Water: ATLANTIC OCEAN
  • Builder: FORISTER BUSH CUSTOM HOMES LLC
  • Community Features: Street Lights
  • Cooling: Central Air
  • Days on Site: 349
  • Directions: PALM COAST PKWY TO HAMMOCK THRU bridge CONTINUE straight Ocean Hammock gate on right.
  • Exterior: Block
  • Exterior Features: Balcony, Outdoor Shower, Sliding Doors
  • Flood Zone Code: X
  • Flooring: Ceramic Tile, Hardwood, Wood
  • Foundation: Stem Wall
  • Frontage Gulf Ocean: 70
  • Garage: 3 car attached
  • Heating: Central, Electric, Heat Pump
  • HOA Fee: 191/ Monthly
  • HOA Y/N: Yes
  • Home Style: Contemporary
  • Home Warranty Y/N: No
  • Interior Features: Ceiling Fans(s), Chair Rail, Coffered Ceiling(s), Crown Molding, Eat-in Kitchen, Elevator, High Ceilings, Open Floorplan, PrimaryBedroom Upstairs, Solid Surface Counters, Split Bedroom, Vaulted Ceiling(s), Walk-In Closet(s)
  • Listing Terms: Cash, Conventional
  • Lot Description: Cul-De-Sac, Landscaped
  • Lot Dimensions: 0.23
  • Lot Size: 0.23 Acres
  • Model: CUSTOM
  • Ownership: Fee Simple
  • Patio/Porch: Patio, Porch, Rear Porch
  • Pets Allowed: Yes
  • Pool: Chlorine Free, Gunite, Heated, In Ground, Lighting, Salt Water, Tile
  • Property Attached Y/N: No
  • Property Sub-Type: Single Family Residence
  • Roof Type: Tile
  • Security: Fire Alarm
  • Sewer: Public Sewer
  • Showing Instructions: Appointment Only
  • Spa: Heated, In Ground
  • Special Sale Provisions: None
  • Special View Info: Water
  • Stories: 3.0
  • Swimming Pool: Yes
  • Taxes: $10,963
  • Utilities: Cable Available, Electricity Available, Phone Available, Sewer Available, Water Available
  • Water: Public
  • Water Access: Gulf/Ocean to Bay
  • Water Access Y/N: Yes
  • Waterfront Features: Gulf/Ocean
  • Water View: Gulf/Ocean - Full
  • Windows: Insulated Windows
  • Year Built: 2025
  • Zoning: PUD